телефон ;
Главная/ Каталог/ Офисные центры/ проект двухэтажного офиса свободной планировки 500 м2/

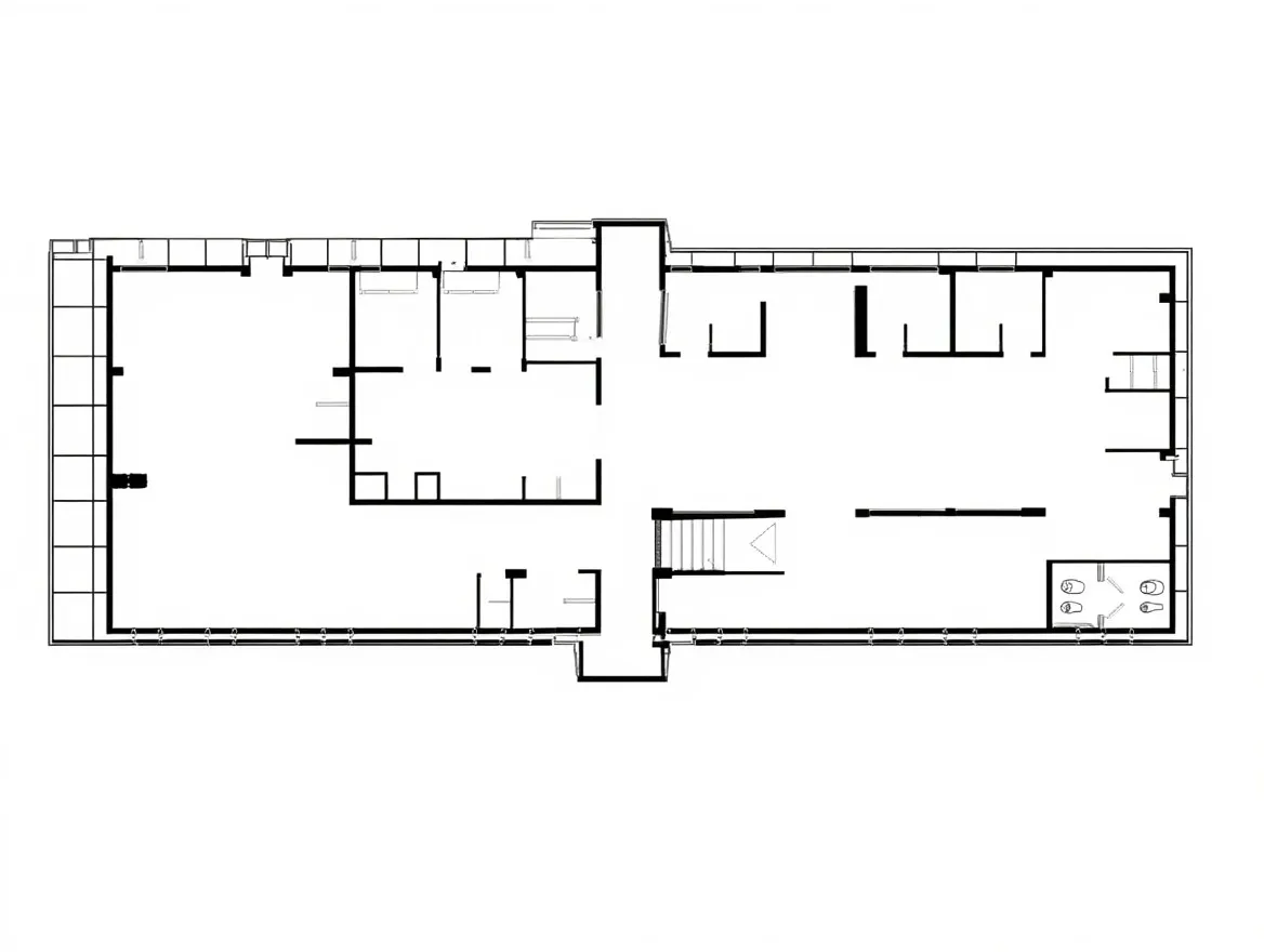
Проект офисного здания 2 этажа свободной планировки 500 м2 в Перми

Стоимость: от 7 450 000 руб.
Площадь: 500 м²
Рассчитать стоимость

Ключевые преимущества

Под ключ
любой сложности
Скорость строительства
в 3 раза быстрее
Место возведения
без ограничений
Стоимость
на 25 % дешевле
Окупаемость
от 3 лет
Налог на недвижимость
не платим
Расширение
быстро и экономно
Перенос здания
без потери функционала

Проектирование и строительство современных офисных пространств в Перми

Проектирование офисных пространств сегодня претерпевает значительные изменения. Современные требования бизнеса диктуют необходимость создавать гибкие и функциональные офисы, которые могут быстро адаптироваться под различные виды деятельности и численность сотрудников. Важную роль здесь играет концепция свободной планировки, которая позволяет максимально эффективно использовать площадь. Компании ищут решения, способные обеспечить комфорт, экономию ресурсов и повышение продуктивности команды одновременно.

Основные характеристики офисного проекта 500 м² в Перми

Проект двухэтажного офиса площадью 500 м² предлагает широкий спектр возможностей для воплощения разнообразных архитектурных и дизайнерских решений. Главной отличительной чертой является его свободная планировка, позволяющая владельцам адаптировать пространство в соответствии с потребностями компании. Общие характеристики такого проекта включают:

  • Два этажа рабочей площади, что обеспечивает возможность разделения функциональных зон.
  • Использование многофункциональных зон для проведения встреч и командной работы.
  • Гибкость в распределении пространства для как групповой, так и индивидуальной работы.

Особенности использования материалов в строительстве офисов в Перми

Выбор материалов для строительства офисного здания существенно влияет на его внешний вид, функциональность и долговечность. Современные проекты часто реализуются с применением быстровозводимых конструкций, что обеспечивает сокращение сроков строительства и оптимизацию затрат. Популярными материалами становятся металлоконструкции и сэндвич-панели, которые предлагают ряд преимуществ:

  • Скорость строительства: использование готовых блоков позволяет сократить время реализации проекта.
  • Экономичность: снижение затрат благодаря оптимизации процессов монтажа и меньшему объему используемых ресурсов.
  • Энергосбережение: применение сэндвич-панелей способствует поддержанию комфортного температурного режима в помещении.

Архитектурные решения и планировка для оптимизации рабочего пространства в Перми

Эффективная организация рабочего пространства в двухэтажном офисе — залог успешной работы компании. Применение нестандартных архитектурных решений помогает не только улучшить эстетику здания, но и повысить его функциональность. Среди возможных решений выделяются:

  • Размещение офисной мебели для создания комфортных рабочих мест.
  • Создание зон тишины и уединения для индивидуальной работы.
  • Многоуровневые зоны для отдыха, совещаний и общего общения.

Нюансы проектов под ключ и их стоимость в Перми

Проекты офисов под ключ пользуются повышенным спросом, поскольку они позволяют заказчику не только минимизировать временные и трудовые затраты, но и получить профессионально выполненное решение. Включение в проект всех этапов от разработки концепции до сдачи готового здания в эксплуатацию делает такой подход привлекательным. Стоимость реализации проекта варьируется в зависимости от ряда факторов:

  • Сложность архитектурных решений и применяемых технологий.
  • Выбор материалов и их объем.
  • Сроки и условия проведения строительных работ.

Металлоконструкции и их роль в офисных зданиях в Перми

Металлоконструкции занимают ключевое место при строительстве современных офисных зданий, обеспечивая не только прочность и долговечность постройки, но и её гибкость в архитектурных решениях. Их использование позволяет создавать уникальные формы и обеспечивает легкость адаптации конструкций под нужды заказчика. К преимуществам металлоконструкций в офисном строительстве можно отнести:

  • Высокая устойчивость к внешним воздействиям и механическим нагрузкам.
  • Экологичность и возможность повторного использования в случае реконструкции.
  • Соединение с другими строительными технологиями, такими как сэндвич-панели, для создания энергоэффективных решений.

 

Прайс‑лист на строительство:
актуальные цены 2026

Наименование услуги / работ
Стоимость, руб.
Единица измерения
Разработка проектной документации и согласование
45 252 руб.
комплект
Геодезическая разбивка участка под строительство
154 руб.
кв. м
Расчистка и планировка строительной площадки
201 руб.
кв. м
Устройство фундамента под металлоконструкции
666 руб.
кв. м
Изготовление колонн и ферм металлоконструкций
15 826 руб.
кв. м
Изготовление ригелей и связей
15 826 руб.
кв. м
Изготовление надколонников и стоек фахверка
15 826 руб.
кв. м
Антикоррозийная обработка металлоконструкций грунтовкой
121 руб.
кв. м
Окраска металлоконструкций (1 проход)
123 руб.
кв. м
Монтаж металлоконструкций с техникой (сварное соединение)
14 983 руб.
кв. м
Монтаж металлоконструкций с техникой (болтовое соединение)
14 983 руб.
кв. м
Утепление ангара (с материалами и работой)
295 руб.
кв. м
Монтаж вентиляционной системы
223 руб.
кв. м
Установка секционных ворот
7 199 руб.
шт.
Дополнительные монтажные работы
256 руб.
кв. м
Доставка строительных материалов
24 руб.
км
Здравствуйте!
Отправляя информацию, вы соглашаетесь с обработкой персональных данных
Отправить